Quá trình làm nhà gỗ 3 gian lim lào tại Thanh Thủy Phú Thọ gần như đã hoàn thiện. Những công đoạn cuối sẽ là lắp dựng bộ đồ thờ “Tam Sư Mai Điểu” được thực hiện bởi đơn vị nhà gỗ Phúc Lộc. Hãy cùng xem quá trình này được thực hiện ra sao trong nội dung bài viết dưới đây.

Nội dung chính
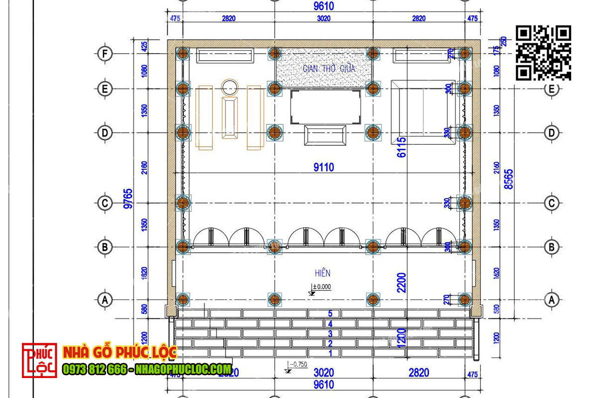
Thông số kỹ thuật nhà gỗ 3 gian 22 cột

- Nhà gỗ 3 gian chiều dài 9,61m; chiều sâu nhà 8,56m (bao gồm hiên – không tính bậc tam cấp). Gian chính giữa có khoảng gian 3,02m, hai gian bên có khoảng gian 2,82m (kích thước tính tim cột)
- Ngôi nhà gỗ 3 gian 22 cột thứ tự kích thước các cột như sau: cột cái có đường kính 33cm, cột con có đường kính 30cm, cột hậu và cột hiên có đường kính 27cm.
- Nhà gỗ 3 gian sử dụng dòng gỗ lim Lào chất lượng.
Quá trình lắp dựng đồ thờ “Tam Sư Mai Điểu” nhà gỗ

Để quý vị và các bạn được hình dung rõ hơn về quá trình lắp dựng bồ đồ thờ “Tam Sư Mai Điểu” chúng ta cùng nhau theo dõi nội dung sau đây.
Lắp dựng cuốn thư



- Đầu tiên là lắp dựng cuối thư, phần này sẽ được lắp dựng sát tường hậu gian chính giữa của ngôi nhà. Cuối thư với kích thước được thiết kế hài hòa, đặt gắn vào tường hậu bên trên giường hành của ngôi nhà gỗ. Trên cuốn thư có chữ Hán Nôm thể hiện những ý nghĩa quan trọng.
Lắp dựng cửa võng thờ 2 lớp
- Tiếp theo là lắp dựng cửa võng thờ kép, với hai lớp ở không gian thờ nhà gỗ Bắc Bộ. Bộ cửa võng được đục chạm hoa văn tỉ mỉ và sang trọng. Phần cửa võng được lắp dựng ở 2 cột con gian giữa của công trình. Chỉ những người thợ có kinh nghiệm thì quá trình lắp dựng cửa võng thờ mới được chuẩn.
Lắp dựng hoành phi

- Tiếp theo đến quá trình lắp dựng hoành phi trong bộ đồ thờ. Phần hoành phi được lắp đặt trên cửa võng, gắn vào hai cột con của gian thờ. Hoành phi được dát vàng ở điểm nhấn và phần chữ. Trên hoành phi có chữ Hán Nôm, thể hiện nhiều ý nghĩa khác nhau. Ví dụ như “Đức Lưu Quang” ý nghĩa là đức sáng muôn đời, thể hiện cái tâm và cái đức trong sáng cho mọi người.
Lắp dựng câu đối
- Đôi câu đối được lắp dựng ở cột con và cột cái gian giữa của ngôi nhà. Đôi câu cấu chạy dọc theo chiều dài của cột, được ốp vừa vặn với phần cột nhà gỗ kẻ truyền Bắc Bộ. Đôi cây đối phần trên được viết chữ Hán Nôm, được dát vàng ở phần chữ và các điểm nhấn ấn tượng. Đặc biệt phần chữ trên đôi câu đối có ý nghĩa về day dặn và giáo dục cho con cháu về những điều tốt đẹp trong cuộc sống
Lắp dựng y môn thờ


- Tiếp đến ở phía dưới hoành phi là y môn. Khác với y môn kép, y môn đơn làm theo kiểu pano đặc. Trên y môn có chia thành các ô. Mỗi ô lại là những hoa văn khác nhau và đều được dát vàng để tạo sự thu hút và nổi bật hơn cho tổng thể bộ đồ thờ đẹp và chất lượng.
Kê sập, bàn cúng cơm, ngai thờ
- Sau khi mọi thứ đã được lắp đặt vào đúng vị trí của nó thì những phần nội thất còn lại như: sập gỗ, bàn cúng cơm, ngai thờ sẽ được đặt vào đúng vị trí của nó. Ngai thờ sẽ được đặt trên phần giường hành. Sập thờ sẽ được đặt giữa hai cột cái và cột con trước không gian thờ. Bàn cúng cơm sẽ được đặt phía bên dưới của sập thờ, có kích thước nhỏ và phù hợp với tổng thể không gian.
Ý nghĩa của bộ đồ thờ “Tam Sư Mai Điểu”

Đồ thờ sang trọng và chỉn chu sẽ tạo nên một không gian thờ tự gia tiên ấm cúng cho gia đình. Do đó mà nhiều gia chủ luôn chú trọng trang trí không gian phòng thờ thật đẹp. Ngoài ra, bộ đồ thờ “Tam Sư Mai Điểu” còn mang nhiều ý nghĩa như sau:
- Bộ đồ thờ ở gian chính giữa ngôi nhà với mục đích khi nào mọi người bước vào ngôi nhà sẽ nhìn thấy đầu tiên. Đây cũng là không gian bày tỏ sự thành kính, ghi nhớ về nguồn gốc của gia đình.
- Đây cũng là khu vực tụ khí tốt lạnh, do đó mà phải bố trí thật sang trọng và đẹp đẽ. Để sau này con cháu nhìn vào sẽ học tập, cũng như được hưởng phúc và gặp nhiều may mắn.
- Bộ đồ thờ còn mang ý nghĩa làm đẹp không gian phòng thờ, giúp cho tổng thể căn nhà nổi bật và hài hòa hơn.
Những lưu ý khi làm đồ thờ nhà gỗ kẻ truyền Bắc Bộ
Để bộ đồ thờ được hoàn thiện một cách chất lượng và đạt tính thẩm mỹ cao nhất. Chúng ta hãy lưu ý một số điều như sau:
- Các mẫu đồ thờ nên lựa chọn sơn thon thếp vàng nhằm tạo sự nổi bật cho không gian nhà gỗ kẻ truyền.
- Tránh mua đồ thờ mỗi nơi một món, điều này khó tạo sự đồng nhất, đồng điệu không gian thờ của gia đình.
- Nên lựa chọn đặt đồng bộ đồ thờ khi làm nhà gỗ kẻ truyền cùng 1 đơn vị, đảm bảo tính thống nhất.
- Đồ thờ là đồ tâm linh cho nên gia chủ nên cân nhắc khi lựa chọn các dòng gỗ tốt và chất lượng ví dụ như gỗ gõ đỏ, gỗ mít.
- Kích thước của đồ thờ luôn được tính toán tỉ mỉ và vừa vặn hơn với không gian nhà gỗ kẻ truyền.
Giới thiệu đơn vị chuyên thi công nhà gỗ kẻ truyền
- Nhà gỗ Phúc Lộc thừa hưởng tinh hoa nghề làm nhà gỗ cổ truyền của làng nghề truyền thống xã Chàng Sơn, huyện Thạch Thất, thành phố Hà Nội.
- Đến nay nhà gỗ Phúc Lộc đã thi công rất nhiều công trình nhà gỗ 3 gian, 5 gian, nhà thờ họ, từ đường và các công trình nhà gỗ theo lối cổ truyền Bắc Bộ trên nhiều tỉnh thành cả nước, mời quý vị và các bạn đi thăm quan nhà mẫu để biết nhiều hơn về sản phẩm chúng tôi
- Nhà gỗ Phúc Lộc với đội ngũ tư vấn nhiệt tình sẵn sàng mời bạn thăm quan xưởng và tìm hiểu nghề làm nhà gỗ cổ truyền Việt Nam.
- Nhằm giữ gìn kiến trúc văn hóa cổ truyền và tiếp nối sự nghiệp gia đình. Thạc sĩ, kiến trúc sư Nguyễn Huy Khiêm đã thành lập Nhà gỗ Phúc Lộc để kế thừa, phát huy tạo ra những sản phẩm nhà gỗ cổ truyền dân gian có giá trị.
- Xưởng nhà gỗ Phúc Lộc nằm cách xa trung tâm Hà Nội về phía tây 25km, dưới chân núi chùa Tây Phương, Thạch Thất, Hà Nội, nơi đây nổi tiếng với làng nghề mộc lâu đời.
- Phúc Lộc với quy mô 6 xưởng sản xuất có diện tích 5000m2 và hơn 100 công nhân, được làm theo tổ đội chuyên trách khác nhau, hướng đến sự chuyên nghiệp và chuyên môn sâu.
- Nhà Gỗ Phúc Lộc luôn chú trọng chất lượng gỗ hàng đầu, để đảm công trình nhà gỗ có tuổi thọ cao.
- Quy trình lọc gỗ và xẻ gỗ của nhà gỗ Phúc Lộc hết sức khắt khe. Tất cả đều được giám sát chặt chẽ đảm bảo chất lượng của các sản phẩm nhà gỗ.
Toàn bộ những thông tin về quá trình lắp dựng đồ thờ “Tam Sư Mai Điểu” ở nhà gỗ lim lào 3 gian tại Thanh Thủy Phú Thọ. Đã giúp cho quý vị và các bạn hiểu hơn về bộ sản phẩm được thực hiện bởi thợ có tay nghề của nhà gỗ Phúc Lộc. Để có thể tư vấn về nhà gỗ 3 gian, 5 gian, vui lòng gọi ngay cho chúng tôi để nhận được hỗ trợ.
Thông tin về nhà gỗ Phúc Lộc
Số điện thoại: 0973812666
Nhận tư vấn thiết kế: Th.s kiến trúc sư Nguyễn Huy Khiêm
Xưởng sản xuất: xã Hạ Bằng, Tp Hà Nội (dưới chân núi chùa Tây Phương)
--> Click xem vị trí bản đồ đường đi tới Xưởng Phúc Lộc
>Tham khảo: những video hay về nhà gỗ cổ truyền Bắc Bộ
>Tham khảo: những dự án nhà gỗ cổ truyền đẹp
>Tham khảo: Nhà gỗ Phúc Lộc
>>Xem thêm: Nghi lễ phạt mộc nhà gỗ lim Lào 3 gian tại Thanh Thủy Phú Thọ
>>Xem thêm: Lắp dựng nhà gỗ lim Lào 3 gian tại Thanh Thủy Phú Thọ
>>Xem thêm: Nghi lễ cất nóc nhà gỗ lim Lào 3 gian tại Thanh Thủy Phú Thọ
Quét mã QR Zalo để được tư vấn và gửi báo giá chi tiết

