Màu xanh của đá
Màu đỏ của ngói, gỗ
Màu vàng của sự ấm áp sang trọng
Tất cả tạo nên một không gian nhà gỗ 3 gian có cột hiên bằng đá kết hợp nhà 5 gian sân vườn. Công trình được đơn vị nhà gỗ Phúc Lộc hoàn thiện tại Nghệ An. Đây là nơi thờ tự gia tiên cho gia đình, là chốn đi về của anh em dòng họ. Hãy cùng xem không gian kiến trúc sẽ được bố trí và thực hiện hoàn thiện ra sao trong nội dung bài viết dưới đây.
Video phát trực tiếp nhà gỗ Đô Lương Nghệ An
Video nhà gỗ 3 gian, 5 gian tại Nghệ An

Nội dung chính
- 1 Thông số kỹ thuật nhà gỗ 3 gian có cột hiên bằng đá
- 2 Vì sao gia chủ lại chọn dòng gỗ lim tali Nam Phi
- 3 Tổng thể công trình nhà gỗ 3 gian có cột hiên bằng đá tại Thanh Hóa
- 4 Phần sân vườn của nhà gỗ 3 gian có cột hiên bằng đá
- 5 Nhà gỗ 5 gian 2 buồng gói trong khuôn viên nhà gỗ cổ truyền
- 6 Không gian tiểu cảnh, sân vườn xung quanh nhà
- 7 Giới thiệu đơn vị chuyên thi công nhà gỗ kẻ truyền Bắc Bộ
Thông số kỹ thuật nhà gỗ 3 gian có cột hiên bằng đá



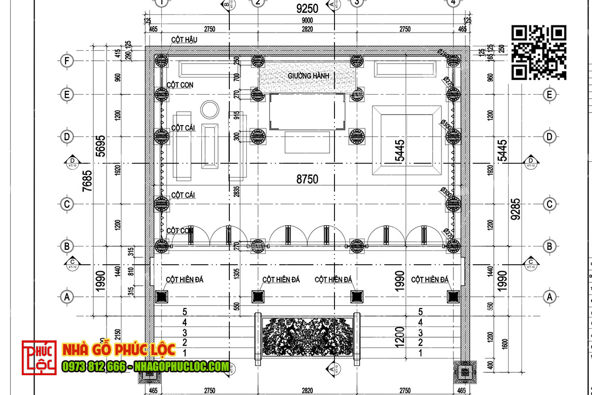
- Nhà gỗ 3 gian có chiều dài 9,25m; chiều sâu nhà 7,68m (bao gồm hiên – không tính bậc tam cấp). Gian chính giữa có khoảng gian 2,82m, hai gian bên có khoảng gian 2,75m (kích thước tính tim cột)
- Ngôi nhà gỗ 3 gian có 22 cột (trong đó có 18 cột gỗ và 4 cột hiên bằng đá) thứ tự kích thước các cột như sau: cột cái có đường kính 30cm, cột con có đường kính 27cm, cột hậu và cột hiên có đường kính 25cm
- Nhà 3 gian sử dụng gỗ lim tali Nam Phi, hàng thương hiệu.
| Khối lượng m3 gỗ nhà chính | 24.51 m3 |
| Diện tích mái nhà chính | 90.5 m2 |
Vì sao gia chủ lại chọn dòng gỗ lim tali Nam Phi

Loại gỗ được gia chủ lựa chọn để sử dụng làm nhà đó chính là gỗ lim tali Nam Phi. Gỗ được xẻ không ôm tâm từ những cây gỗ lớn. Dòng gỗ này hội tụ những đặc điểm nổi bật như sau:
- Gỗ lim có tính chất cơ lý ổn định, được xử lý kỹ trước khi thi công
- Dòng gỗ lim có màu sắc trầm ấm và đẹp mắt với các vân gỗ dọc dưa, mây mây, vân núi…
- Loại gỗ này sau khi gia công và được xử lý hạn chế tình trạng cong vênh, mối mọt.
- Cây gỗ lim được lựa chọn là cây già, thân gỗ lớn và hơn nữa được xẻ không ôm tâm.
Tổng thể công trình nhà gỗ 3 gian có cột hiên bằng đá tại Thanh Hóa

Ngôi nhà gỗ 3 gian được làm theo lối kiến trúc tiền kẻ hậu bẩy, vì đốc chồng rường, ốp đố vỏ măng. Đây chính là không gian thờ tự của những người con xa quê, làm ăn thành đạt, có nhu cầu xây cho cha mẹ một không gian thờ tự để báo hiếu, đoàn viên anh em trong gia đình.
Bên trong nhà gỗ 3 gian có cột hiên bằng đá

- Bên trong nhà gỗ 3 gian có cột hiên bằng đá được bố trí công năng và nội thất hài hòa. Đây là những phần nội thất theo lối kiến trúc cổ xưa. Ở gian chính giữa của ngôi nhà được đặt làm gian thờ của nhà gỗ kẻ truyền.


- Ở gian chính giữa của căn nhà là không gian đặc biệt quan tâm. Đây được bố trí là nơi thờ tự gia tiên, là không gian tương đối rộng. Bộ đồ thờ được đặt của đơn vị nhà gỗ Phúc Lộc “bộ đồ thờ tam sư mai điểu”. Bao gồm các phần nội thất đồ thờ cụ thể như: sập thờ, bàn cơm, cửa võng, hoành phi câu đối, y môn, cuốn thư…Toàn bộ được bài trí ấn tượng và trang trọng.

- Hai gian bên cạnh còn được bố trí là nơi tiếp khách và họp mặt gia đình, phần nội thất bao gồm những phần nội thất cơ bản như sau: trưởng kỷ, sập gụ tủ chè, đôi lục bình, các phần nội thất trang trí khác…

- Tường hậu của căn nhà gỗ 3 gian được ốp gỗ nan dọc. Giúp cho công trình trở nên ấn tượng và đặc sắc hơn. Đây cũng là một trong những kiểu tường hậu phổ biến ở nhà gỗ kẻ truyền hiện nay.
- Vách thuận của căn nhà được làm ốp đố vỏ măng một trong những kiểu kiến trúc quen thuộc ở nhà gỗ kẻ truyền.
- Bên cạnh đó, nhà gỗ 3 gian có cột hiên bằng đá còn được bố trí những cấu kiện đặc sắc như: câu đầu, kẻ ngồi, con rường, thượng lương, khung lá hạ diệp, bẩy hậu…Toàn bộ được đục chạm nông, với các họa tiết cổ ấn tượng và sang trọng cho nhà gỗ.
Phần hiên nhà gỗ 3 gian có cột hiên bằng đá


- Phần hiên của nhà gỗ 3 gian có cột hiên bằng đá được làm với thiết kế hài hòa, tỷ lệ cân xứng. Phần vì đốc hiên được đục chạm con rường xếp chồng lên nhau, với những họa tiết hoa lá lật mềm mại. Phần bẩy cò được đục cá hóa rồng, mang ý nghĩa về khỏe mạnh và đẹp đẽ.
- Kẻ hiên của ngôi nhà gỗ được đục chạm những hoa văn đặc sắc và mang nhiều ý nghĩa tứ quý hóa rồng (tùng hóa rồng, cúc hóa rồng, trúc hóa rồng, mai hóa rồng), bầu rượu túi thơ, cầm kỳ thi họa…
- Cửa bức bàn của ngôi nhà được làm theo kiểu pano đặc. Bên trên đục ngũ phúc lâm môn, ngũ quả “đào lê thủ lựu”, “tùng cúc trúc mai” với ước muốn mùa màng bội thu và tươi tốt quanh năm, mọi điều thuận lợi.
- Khung song ô thoáng của ngôi nhà gỗ 3 gian có cột hiên bằng đá trên được làm khung song, dưới là ô tam sơn được chia thành từng ô khác nhau, đục chạm tranh đặc sắc như: hoa sen, trúc, tùng, cúc, mai…
- Phần cột hiên được làm bằng đá với nhiều họa tiết khác nhau. Các cột hiên bằng đá giúp cho không gian được cổ kính và sang trọng hơn.
Bên ngoài nhà gỗ 3 gian có cột hiên bằng đá
- Căn nhà gỗ được làm 2 mái, với độ dốc 68%, tạo độ thoát nước tốt. Ngôi nhà được lợp ngói ta nung thủ công một chất liệu vô cùng quen thuộc trong làm nhà gỗ kẻ truyền Bắc Bộ.

- Nhằm giúp phần mái tăng thêm giá trị thẩm mỹ cho phần mái ngôi nhà gỗ 3 gian có hậu cung. Thì trên mái nhà có trang trí các chi tiết đẹp mắt như: gạch hoa chanh, đại tự, đấu lớn, triện nóc đắp vẽ hoa văn uốn lượn mềm mại. Đặc biệt là sơn màu xám hài hòa và ấn tượng hơn cho công trình
Phần sân vườn của nhà gỗ 3 gian có cột hiên bằng đá

- Căn nhà gỗ 3 gian có cột hiên bằng đá có phần bậc tam cấp được lát đá tự nhiên, bao gồm 5 bậc. Được chia thành ở hai đầu của gian nhà gỗ Chất liệu này với khả năng chống trơn trượt tốt và màu sắc đẹp hài hòa với khuôn viên nhà. Mẫu đá xanh này vô cùng chất lượng, được sử dụng nhiều trong những ngôi nhà gỗ Bắc Bộ hiện nay.
- Sân ngôi nhà còn được sử dụng đá tự nhiên, một trong những vật liệu cổ quen thuộc ở nhà gỗ kẻ truyền Bắc Bộ. Với khả năng chống trơn trượt và làm sạch dễ dàng.

- Bên cạnh đó gian chính giữa của không gian nhà gỗ 3 gian bố trí chiếu rồng bằng đá, với những hoa văn đặc sắc nhất. Đồng điệu hơn với không gian nhà gỗ kẻ truyền
- Ngoài ra, còn được bố trí cây cảnh đẹp và sang trọng. Đây chính là một nét đẹp hiện đại kết hợp hài hòa với ngôi nhà gỗ cổ truyền.
Nhà gỗ 5 gian 2 buồng gói trong khuôn viên nhà gỗ cổ truyền


- Ngôi nhà gỗ 5 gian 2 buồng gói trong khuôn viên nhà gỗ sẽ là nơi ở, tiếp khách riêng tư của gia chủ. Không gian này làm từ chất liệu gỗ xoan ta, kết hợp phần xây. Phù hợp với kiến trúc của ngôi nhà, gồm có 3 gian giữa với không gian mở, hai gian bên là buồng gói là nơi để ngủ nghỉ và chứa đồ.



- Không gian nhà mái ngói được thiết kế và thi công theo đúng phong cách cổ truyền. Làm nổi bật không gian nhờ ở và nhà thờ trong tổng thể khuôn viên.
Không gian tiểu cảnh, sân vườn xung quanh nhà




- Gia chủ lựa chọn trồng một số loại cây ăn quả, cây cảnh làm cho khuôn viên xanh mát hơn và điều hòa bầu không khí xung quanh căn nhà gỗ.
- Ngoài ra, gia chủ còn bố trí một ao nước nhỏ trước nhà gỗ 3 gian, đây sẽ là không gian thư giãn, vãn cảnh. Cũng để tái hiện làng quê xưa cũ của cha ông ta để lại.
- Gia đình để lại phần giếng cổ giúp cho không gian thêm cổ kính, đây cũng là một trong những phần kỷ niệm của gia đình gìn giữ và mong sẽ truyền lại cho con cháu đời sau.
Giới thiệu đơn vị chuyên thi công nhà gỗ kẻ truyền Bắc Bộ
- Nhà gỗ Phúc Lộc thừa hưởng tinh hoa nghề làm nhà gỗ cổ truyền của làng nghề truyền thống xã Chàng Sơn, huyện Thạch Thất, thành phố Hà Nội.
- Đến nay nhà gỗ Phúc Lộc đã thi công rất nhiều công trình nhà gỗ 3 gian, 5 gian, nhà thờ họ, từ đường và các công trình nhà gỗ theo lối cổ truyền Bắc Bộ trên nhiều tỉnh thành cả nước, mời quý vị và các bạn đi thăm quan nhà mẫu để biết nhiều hơn về sản phẩm chúng tôi
- Nhà gỗ Phúc Lộc với đội ngũ tư vấn nhiệt tình sẵn sàng mời bạn thăm quan xưởng và tìm hiểu nghề làm nhà gỗ cổ truyền Việt Nam.
- Nhằm giữ gìn kiến trúc văn hóa cổ truyền và tiếp nối sự nghiệp gia đình. Thạc sĩ, kiến trúc sư Nguyễn Huy Khiêm đã thành lập Nhà gỗ Phúc Lộc để kế thừa, phát huy tạo ra những sản phẩm nhà gỗ cổ truyền dân gian có giá trị.
- Xưởng nhà gỗ Phúc Lộc nằm cách xa trung tâm Hà Nội về phía tây 25km, dưới chân núi chùa Tây Phương, Thạch Thất, Hà Nội, nơi đây nổi tiếng với làng nghề mộc lâu đời.
- Phúc Lộc với quy mô 6 xưởng sản xuất có diện tích 5000m2 và hơn 100 công nhân, được làm theo tổ đội chuyên trách khác nhau, hướng đến sự chuyên nghiệp và chuyên môn sâu.
- Nhà Gỗ Phúc Lộc luôn chú trọng chất lượng gỗ hàng đầu, để đảm công trình nhà gỗ có tuổi thọ cao.
- Quy trình lọc gỗ và xẻ gỗ của nhà gỗ Phúc Lộc hết sức khắt khe. Tất cả đều được giám sát chặt chẽ đảm bảo chất lượng của các sản phẩm nhà gỗ.
Toàn bộ những thông tin về hoàn thiện nhà gỗ 3 gian có cột hiên bằng đá kết hợp nhà ngang 5 gian 2 buồng sân vườn đẹp. Sẽ giúp cho quý vị và các bạn có thêm sự lựa chọn khi làm nhà gỗ kẻ truyền. Để có thể biết chi tiết về ngôi nhà gỗ 3 gian, 5 gian hãy gọi ngay cho chúng tôi qua số điện thoại để nhận tư vấn từ chuyên gia.
Thông tin về nhà gỗ Phúc Lộc
Số điện thoại: 0973812666
Nhận tư vấn thiết kế từ KTS Chuyên gia của Nhà gỗ Phúc Lộc
Xưởng sản xuất: xã Hạ Bằng, Tp Hà Nội (dưới chân núi chùa Tây Phương)
--> Click xem vị trí bản đồ đường đi tới Xưởng Phúc Lộc
>Tham khảo: những video hay về nhà gỗ cổ truyền Bắc Bộ
>Xem thêm: Phạt mộc nhà gỗ 3 gian có cột hiên bằng đá tại Đô Lương Nghệ An
>Xem thêm: Lắp dựng nhà gỗ 3 gian 22 cột có cột hiên bằng đá tại Đô Lương Nghệ An
Quét mã QR Zalo để được tư vấn và gửi báo giá chi tiết

