Dưới chốn quê thanh bình, nếp nhà gỗ 3 gian có cột đồng trụ được hoàn thiện tại Kiến Xương Thái Bình. Căn nhà hiện lên như một mảng ký ức xưa được gia chủ tái hiện. Đó không chỉ là một ngôi nhà để ở, mà là nơi chốn để trở về còn là nơi lưu giữ nề nếp gia phong, đạo hiếu và nhịp sống chậm rãi của làng quê Việt. Công trình được thực hiện từ bàn tay người thợ lành nghề của Nhà gỗ Phúc Lộc, từng thớ gỗ, mộng chốt, mái ngói đều được chăm chút kỹ lưỡng, để mỗi ngôi nhà không chỉ đẹp ở hình dáng, mà còn ấm ở hồn quê.
Video phát trực tiếp hoàn thiện nhà gỗ 3 gian Kiến Xương Thái Bình
Video về mẫu nhà thờ học 3 gian tại Kiến Xương – Thái Bình

Nội dung chính
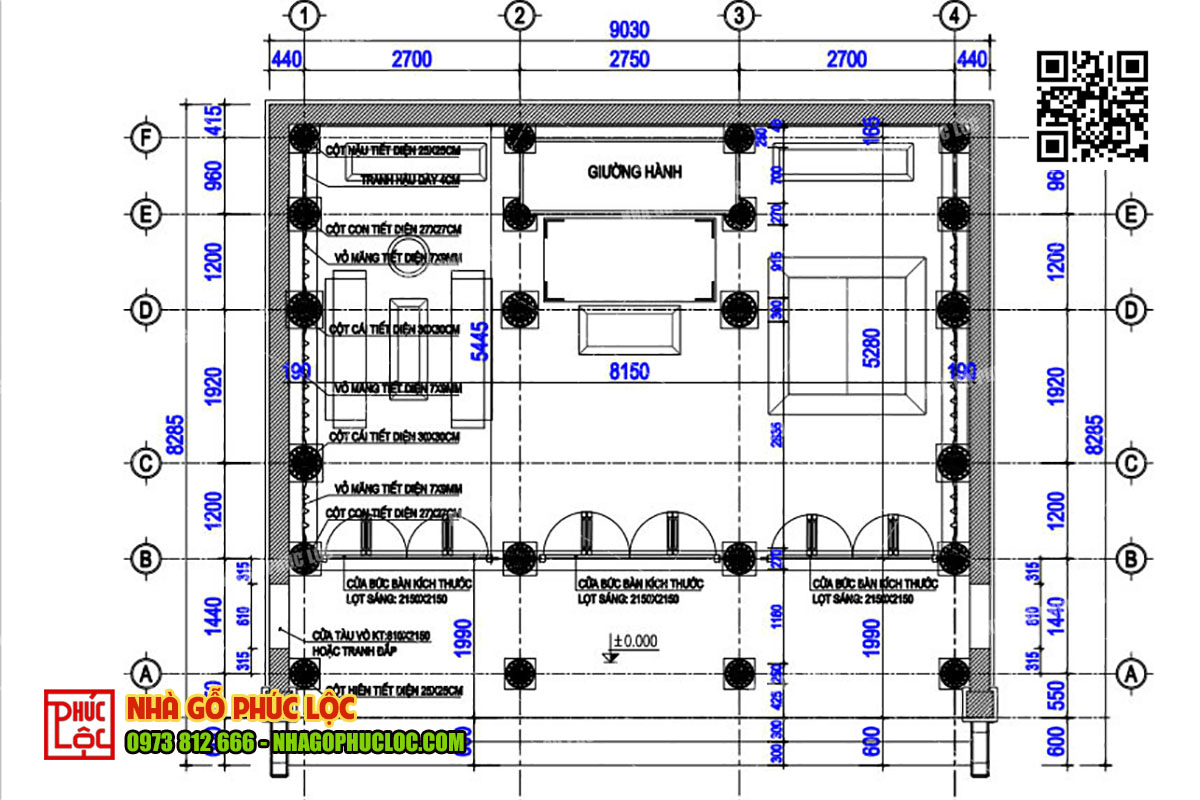
Thông số kỹ thuật nhà gỗ 3 gian 22 cột

- Nhà gỗ 3 gian có chiều dài 9,03m; chiều sâu nhà 8,28m (bao gồm hiên – không tính bậc tam cấp). Gian chính giữa có khoảng gian 2,75 m, hai gian bên có khoảng gian 2,7m (kích thước tính tim cột)
- Ngôi nhà gỗ 3 gian có 22 cột, thứ tự kích thước các cột như sau: cột cái có đường kính 30cm, cột con có đường kính 27cm, cột hậu và cột hiên có đường kính 25cm
- Nhà 3 gian sử dụng gỗ lim tali Nam Phi, hàng thương hiệu
| Khối lượng m3 gỗ nhà chính | 26.6 m3 |
| Diện tích mái nhà chính | 87 m2 |
Lý do gia đình lựa chọn dòng gỗ lim tali Nam Phi

Loại gỗ được gia chủ lựa chọn để sử dụng làm nhà đó chính là gỗ lim tali Nam Phi. Gỗ được xẻ không ôm tâm từ những cây gỗ lớn. Dòng gỗ này hội tụ những đặc điểm nổi bật như sau:
- Gỗ lim có tính chất cơ lý ổn định, được xử lý kỹ trước khi thi công
- Dòng gỗ lim có màu sắc trầm ấm và đẹp mắt với các vân gỗ dọc dưa, mây mây, vân núi…
- Loại gỗ này sau khi gia công và được xử lý hạn chế tình trạng cong vênh, mối mọt.
- Cây gỗ lim được lựa chọn là cây già, thân gỗ lớn và hơn nữa được xẻ không ôm tâm
Tổng thể công trình nhà gỗ 3 gian có cột đồng trụ tại Kiến Xương Thái Bình

Ngôi nhà gỗ 3 gian có cột đồng trụ được làm theo lối kiến trúc tiền kẻ hậu bẩy, vì đốc chồng rường, ốp đố vỏ măng. Một không gian thờ tự gia tiên được gia đình ấp ủ từ lâu, đây sẽ là không gian con cháu gặp mặt mỗi khi có dịp.
Bên trong ngôi nhà gỗ 3 gian có cột đồng trụ

- Bên trong nhà gỗ 3 gian có cột đồng trụ được bố trí công năng và nội thất hài hòa. Đây là những phần nội thất theo lối kiến trúc cổ xưa. Không gian của cả ba gian được đặt làm gian thờ tự.




- Ở gian chính giữa của căn nhà là không gian đặc biệt quan tâm. Đây được bố trí là nơi thờ tự gia tiên, là không gian tương đối rộng. Đây là bộ đồ thờ được gia chủ lựa chọn đặt hàng bởi nhà gỗ Phúc Lộc, bộ đồ thờ “Tam sư mai điểu”. Bao gồm các phần như: sập thờ, bàn kỷ đục mai, hoành phi câu đối, cuốn thư, y môn, cửa võng, ngai thờ…


- Hai gian bên cạnh cũng được gia chủ bố trí các không gian thờ tự phụ. Với những phần nội thất cụ thể như: án gian, cửa võng triện tàu lá dắt, ngai thờ, đồ thờ…
- Tường hậu của căn nhà gỗ 3 gian có cột đồng trụ được ốp gỗ nan dọc, một trong những phong cách quen thuộc nhà cổ xưa. Giúp cho công trình trở nên ấn tượng và đặc sắc hơn


- Vách thuận của căn nhà được làm ốp đố vỏ măng một trong những kiểu kiến trúc quen thuộc ở nhà gỗ kẻ truyền. Các phần vỏ măng được uốn lượn tạo nên những đường cong mềm mại.




- Bên cạnh đó, nhà gỗ 3 gian có cột đồng trụ còn được bố trí lắp dựng những cấu kiện đặc sắc như: câu đầu, kẻ ngồi, con rường, thượng lương, khung lá hạ diệp, bẩy hậu…Toàn bộ được đục chạm nông, bám thân mềm mại, với các họa tiết cổ ấn tượng và sang trọng cho nhà gỗ 3 gian có cột đồng trụ.
Phần hiên ngôi nhà gỗ 3 gian có cột đồng trụ


- Phần hiên của nhà gỗ 3 gian có cột đồng trụ được làm với thiết kế hài hòa, tỷ lệ cân xứng. Phần vì đốc hiên được đục chạm con rường xếp chồng lên nhau, với những họa tiết hoa lá lật mềm mại. Phần bẩy cò được đục cá hóa rồng, mang ý nghĩa về khỏe mạnh và đẹp đẽ.


- Cửa bức bàn của ngôi nhà được làm theo kiểu pano đặc. Bên trên đục ngũ phúc lâm môn, ngũ quả “đào lê thủ lựu”, “tùng cúc trúc mai” ra hoa, ra quả, với ước muốn mùa màng bội thu và tươi tốt quanh năm, mọi điều thuận lợi.

- Kẻ hiên của ngôi nhà gỗ được đục chạm những hoa văn đặc sắc và mang nhiều ý nghĩa tứ quý hóa rồng (tùng hóa rồng, cúc hóa rồng, trúc hóa rồng, mai hóa rồng), bầu rượu túi thơ, cầm kỳ thi họa…

- Khung song ô thoáng của ngôi nhà gỗ 3 gian cổ truyền trên được làm khung song, dưới là ô tam sơn được chia thành từng ô khác nhau, đục chạm tranh đặc sắc như: hoa sen, trúc, tùng, cúc, mai…
- Ngưỡng cửa được thiết kế vừa phải, đúng tiêu chuẩn nhà cổ truyền, thể hiện sự nhân văn khi khách đến thăm nhà bước vào phải cúi đầu chào gia tiên. Đồng thời còn nâng cao tính thẩm mỹ cho căn nhà gỗ cổ truyền.
Bên ngoài ngôi nhà gỗ 3 gian có cột đồng trụ

- Căn nhà gỗ được làm 2 mái, với độ dốc 68%, tạo độ thoát nước tốt. Ngôi nhà được lợp ngói ta nung thủ công một chất liệu vô cùng quen thuộc trong làm nhà gỗ kẻ truyền Bắc Bộ.
- Nhằm giúp phần mái tăng thêm giá trị thẩm mỹ cho phần mái ngôi nhà gỗ 3 gian. Thì trên mái nhà có trang trí các chi tiết đẹp mắt như: gạch hoa chanh, đại tự, đấu lớn, triện nóc đắp vẽ hoa văn uốn lượn mềm mại. Đặc biệt là sơn màu vàng nhạt hài hòa và ấn tượng hơn cho công trình.

- Bên cạnh còn có đôi cột đồng trụ được đắp vẽ sang trọng và chất lượng. Đây sẽ là phần bảo vệ cho căn nhà gỗ khỏi nhiều yếu tố bên ngoài. Đôi cột đồng trụ được đắp vẽ ấn tượng, chi tiết bởi bàn tay tài hoa của những người thợ.
Phần sân vườn của ngôi nhà gỗ 3 gian có cột đồng trụ


- Căn nhà gỗ 3 gian cổ truyền có bậc tam cấp được lát đá xanh. Chất liệu này với khả năng chống trơn trượt tốt và màu sắc đẹp hài hòa với khuôn viên nhà. Đá tự nhiên này vô cùng chất lượng, được sử dụng nhiều trong những ngôi nhà gỗ Bắc Bộ hiện nay.
- Sân ngôi nhà gỗ 3 gian còn được lát gạch đỏ Bát Tràng, một trong những vật liệu cổ quen thuộc ở nhà gỗ kẻ truyền Bắc Bộ. Với khả năng chống trơn trượt và làm sạch dễ dàng, đồng điệu hơn với ngôi nhà.
- Ngoài ra, nhà gỗ lim còn được bố trí cây cảnh đẹp và sang trọng. Đây chính là một nét đẹp hiện đại kết hợp hài hòa với ngôi nhà gỗ cổ truyền.
Phần nhà mái ngói phía bên cạnh
- Phần nhà ngang mái nhật hiện đại bên cạnh được xây dựng để làm không gian ở và sinh hoạt chung cho gia đình. Ngôi nhà được bố trí kiến trúc hiện đại, nhưng vẫn hài hoà với kiến trúc truyền thống.
- Căn nhà được bố trí các phòng chức năng khác nhau như: phòng ăn, phòng ngủ, phòng bếp, nhà vệ sinh, phòng khách…Tất cả nhằm đáp ứng nhu cầu thiết yếu của gia đình.
Giới thiệu đơn vị chuyên thi công nhà gỗ kẻ truyền Bắc Bộ
- Nhà gỗ Phúc Lộc thừa hưởng tinh hoa nghề làm nhà gỗ cổ truyền của làng nghề truyền thống xã Chàng Sơn, huyện Thạch Thất, thành phố Hà Nội.
- Đến nay nhà gỗ Phúc Lộc đã thi công rất nhiều công trình nhà gỗ 3 gian, 5 gian, nhà thờ họ, từ đường và các công trình nhà gỗ theo lối cổ truyền Bắc Bộ trên nhiều tỉnh thành cả nước, mời quý vị và các bạn đi thăm quan nhà mẫu để biết nhiều hơn về sản phẩm chúng tôi
- Nhà gỗ Phúc Lộc với đội ngũ tư vấn nhiệt tình sẵn sàng mời bạn thăm quan xưởng và tìm hiểu nghề làm nhà gỗ cổ truyền Việt Nam.
- Nhằm giữ gìn kiến trúc văn hóa cổ truyền và tiếp nối sự nghiệp gia đình. Thạc sĩ, kiến trúc sư Nguyễn Huy Khiêm đã thành lập Nhà gỗ Phúc Lộc để kế thừa, phát huy tạo ra những sản phẩm nhà gỗ cổ truyền dân gian có giá trị.
- Xưởng nhà gỗ Phúc Lộc nằm cách xa trung tâm Hà Nội về phía tây 25km, dưới chân núi chùa Tây Phương, Thạch Thất, Hà Nội, nơi đây nổi tiếng với làng nghề mộc lâu đời.
- Phúc Lộc với quy mô 6 xưởng sản xuất có diện tích 5000m2 và hơn 100 công nhân, được làm theo tổ đội chuyên trách khác nhau, hướng đến sự chuyên nghiệp và chuyên môn sâu.
- Nhà Gỗ Phúc Lộc luôn chú trọng chất lượng gỗ hàng đầu, để đảm công trình nhà gỗ có tuổi thọ cao.
- Quy trình lọc gỗ và xẻ gỗ của nhà gỗ Phúc Lộc hết sức khắt khe. Tất cả đều được giám sát chặt chẽ đảm bảo chất lượng của các sản phẩm nhà gỗ.
Nhà gỗ 3 gian có cột đồng trụ không chỉ là một công trình kiến trúc, mà còn là biểu tượng của cội nguồn, của nếp sống gia phong bền chặt theo năm tháng. Giữa nhịp sống hiện đại vội vã, một ngôi nhà mang dáng dấp xưa cũ lại trở thành chốn an yên để con người tìm về sự cân bằng, lắng nghe nhịp thở của quê hương trong từng đường nét gỗ. Nếu bạn đang ấp ủ mong muốn sở hữu một nếp nhà gỗ 3 gian chuẩn mực, bền vững và giàu giá trị tinh thần, hãy liên hệ ngay Nhà gỗ Phúc Lộc để được tư vấn, thiết kế và hiện thực hóa không gian sống mang đậm hồn Việt cho gia đình mình.
Thông tin về nhà gỗ Phúc Lộc
Số điện thoại: 0973812666
Nhận tư vấn thiết kế: Th.s kiến trúc sư Nguyễn Huy Khiêm
Xưởng sản xuất: xã Hạ Bằng, Tp Hà Nội (dưới chân núi chùa Tây Phương)
--> Click xem vị trí bản đồ đường đi tới Xưởng Phúc Lộc
>Tham khảo: những video hay về nhà gỗ cổ truyền Bắc Bộ
>Tham khảo: những dự án nhà gỗ cổ truyền đẹp
>Tham khảo: Nhà gỗ Phúc Lộc
>>Xem thêm: Lễ phạt mộc nhà gỗ 3 gian 22 cột tại Kiến Xương – Thái Bình
>>Xem thêm: Lắp dựng nhà gỗ 3 gian 22 cột tại Kiến Xương – Thái Bình
>>Xem thêm: Lắp dựng bộ đồ thờ nhà gỗ 3 gian tại Kiến Xương Thái Bình
Quét mã QR Zalo để được tư vấn và gửi báo giá chi tiết
